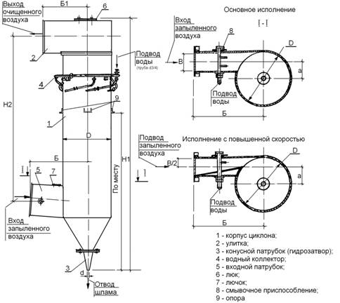
Циклон с водяной пленкой ЦВП рассчитан на очистку запыленного вентиляционного воздуха от любых видов нецементирующейся пыли. По внутренней поверхности стенки циклона непрерывно стекает пленка воды, которая тангенциально вводится в аппарат через ряд трубок, расположенных в его верхней части. Циклоны ЦВП не следует применять для очистки агрессивных газов.
В циклоне ЦВП воздух подается тангенциально через нижний входной патрубок и удаляется через патрубок в его верхней части. Стенки циклона непрерывно смачиваются водой из сопел, размещенных в его верхней части по окружности и объединенных водораспределительным кольцом. К спускному отверстию циклона прикреплен конус, который заменяет гидравлический затвор. В подводящем патрубке циклона имеется смывное устройство для удаления пылевых отложений, образующихся в патрубке.
Технические характеристики ЦВП
| Типоразмер |
Расход жидкости на орошение стенок циклона, л/с |
Расход жидкости на орошение стенок входного патрубка, л/с |
Вес, кг |
Гидравлическое сопротивление, макс, кгс/м2 |
| ЦВП-3 |
0,14 |
1,1 |
63,9 |
91,5 |
| ЦВП-4 |
0,17 |
1,2 |
106,7 |
| ЦВП-5 |
0,21 |
1,4 |
161,0 |
| ЦВП-6 |
0,27 |
1,6 |
237,0 |
| ЦВП-8 |
0,35 |
2,0 |
370,0 |
| ЦВП-10 |
0,43 |
2,4 |
570,0 |

|